Description
Small House Plans 7×12 with 2 Bedrooms 23×40 feet
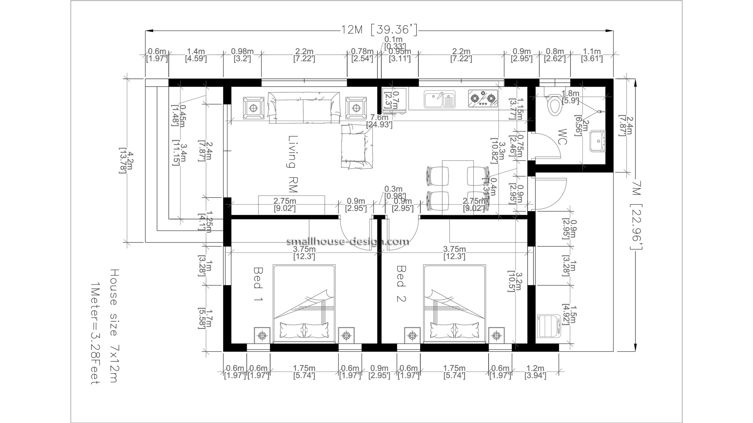
Introduction to a Simple Design House with 7 meter wide and 12 meters long. It has 2 bedrooms with full completed function in the house. You will love this Small House Plans 7×12 Meter 23×40 Feet Two Beds.
Floor plan Detail Small House Plans 7×12:
The Roof Tile:
Finally, The Hip roof type is made from Cement tiles (or your local roof tiles) that cover above Gypsum board ceiling . It make the house look clean and modern.
Exterior Small House Plans 7×12:
Similarly, to the roof border color we choose a bite dark and light color combination together with a big glass door and window to get the house look so beautiful and Modern house.

House Short Description:
Ground floor layout plan:
-Car Parking and garden
-Living room,
-Dining room
-Kitchen
-1 Bathroom
-Storage
-washing room
– 2 bedrooms
First floor layout plan:
-0 Bedrooms with 0 bathroom
-0 Balcony
PLEASE MAKE SURE YOU HAVE CHECK the free sample plans
Check the Plans for more detail:
Click Here to Download
The House has:
One-story house, 2 bedrooms, 1 bathroom,
living room Kitchen, Dinning room, Washing machine outside the house, No parking
Modern style house style
Buy this house plan:
-Layout Detailing floor plan
-Elevation Plan with dimension (Front Back Left Right Elevation).
-Sketchup file can used in Meter and Feet
-Autocad file (All Layout plan)
* Included files Autocad 2010 and Sketchup 2017
Your could Reach Us: Personal FB:Â Sophoat Toch
Facebook Page: Sam Architect
Facebook Group:Â Home Design Idea
More Plans Download On Youtube:Â House Plans Channel
If you think this Plan is useful for you. Please like and share.


Buy More House plans:
New House Design 12×14 Meter 40×46 Feet
Best Small House Designs 9×6 Meter 30×20 Feet
Small Cottage Designs 9×6 Meter 30×20 Feet
Small Floor Plans 9×6 Meter 30×20 Feet
Farmhouse Plans 9×6 Meter 30×20 Feet
Modern Small House Design 7×7 Meter 23×23 Feet
Small Cabin Plans 7×7 Meter 23×23 Feet
Plan Design 23×23 Feet 7×7 Meter
Small Design 7×7 Meter 23×23 Feet One Bed
House Plan Drawing 6×10 Meters 20×33 Feet 2 Beds












Reviews
There are no reviews yet.